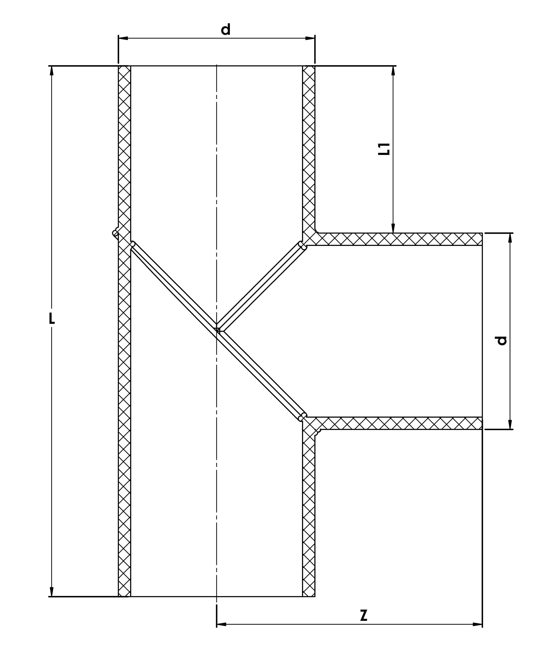
EQUAL TEE SEGMENTED SDR17 PE100-RC

METRIC-SIZED PRODUCTS

SPIGOT FITTINGS

  WATER: 10 BAR

d CODE Kg. L (mm) L1 (mm) Z (mm) nos/box
355 03211710000003550000 32,00 960 300 480 **
400 03211710000004000000 42,00 1000 300 500 **
450 03211710000004500000 56,00 1050 300 525 **
500 03211710000005000000 79,00 1200 350 600 **
560 03211710000005600000 104,00 1260 350 630 **
630 03211710000006300000 139,00 1330 350 665 **
710 03211710000007100000 194,00 1410 350 705 **
800 03211710000008000000 252,00 1500 350 750 **
900 03211710000009000000 352,00 1800 450 900 **
1000 03211710000010000000 437,00 2000 480 980 **

 

(**) : Karton kutu kullanılmaz.Sadece Euro paletler kullanılmaktadır. / No box is used. Only Euro pallets are being used.